Nos annonces

Bénéficiez de notre expertise d’estimation et de négociation

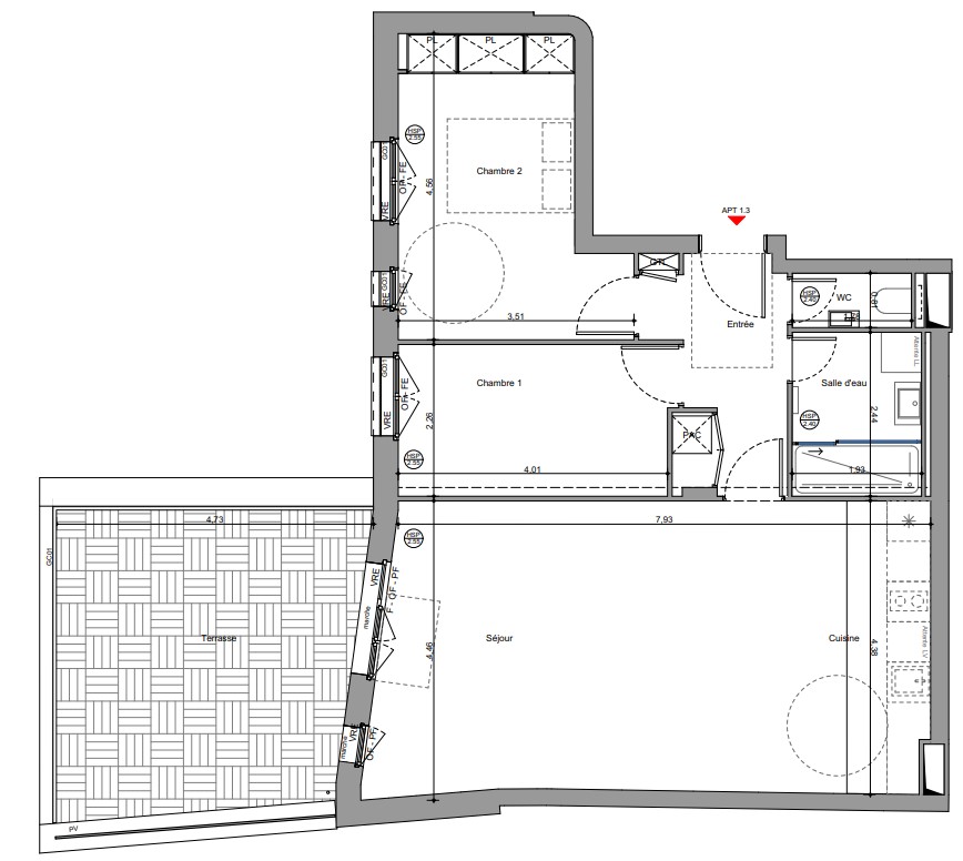
PARIS 20ème arrondissement

3 PIECES

Surface

70,53 m²

TERRASSE

19,63 M²

Prix : 875.000 €

About This Project

PROGRAMME NEUF – Livraison 2ème trimestre 2027
3 Pièces au 1er étage – 70,53 m² + terrasse de 19,63 m²
Entre les rues Irénée Blanc et Jules Siegfried se cache la Campagne à Paris, un petit coin de tranquillité rare dans la capitale. Vous serez séduit par le silence et la beauté des pavillons ornés de marquises et de jardinets. En choisissant de s’installer au sud du quartier Saint-Blaise, on bénéficie donc d’un cadre de vie agréable, d’une facilité de transport et d’un accès à une richesse culturelle et gastronomique. Proche du Père Lachaise, d’écoles, collèges et lycées, de squares et espaces verts, de nombreuses boutiques et commerces d’un quartier du 20ème animé : les Jardins de Galleron sont un lieu idéal où il fait bon vivre. La résidence Galleron allie élégance et modernité. Avec ses 12 appartements allant du T2 au T4, cette résidence offre une variété de logements adaptés à tous les besoins et styles de vie. Chaque appartement a été conçu avec soin, en mettant l’accent sur le confort et la fonctionnalité. Les espaces de vie sont lumineux et spacieux, offrant une atmosphère agréable pour se détendre et recevoir. De plus, la résidence comprend également un commerce en rez-de-chaussée, offrant ainsi une commodité supplémentaire aux résidents. Vivez dans la verdure et au calme en plein Paris Résidence au cœur d’une petite rue à sens unique, les Jardins de Galleron sont une véritable oasis de tranquillité dans le sud du 20ème arrondissement. Découvrez le bonheur de vivre en plein air et profitez de moments de détente sans pareil dans les jardins privatifs ou sur les terrasses ensoleillées de notre nouvelle résidence. La plupart des appartements de la résidence Les Jardins de Galleron disposent soit d’un jardinet privatif (au RDC) soit d’une terrasse. Chaque appartement de notre résidence bénéficie de finitions haut-de-gamme, mettant en valeur des matériaux nobles et des détails raffinés. Découvrez une harmonie parfaite entre l’élégance intemporelle et le confort moderne dans chaque appartement de la résidence. PRESTATIONS DISPONIBLES • Chape isophonique • Parquet contrecollé dans les pièces sèches • Carrelage 45×45 dans les pièces humides • Meuble vasque dans les salles de bain et salles d’eau • Menuiseries métalliques • Volets roulants électriques dans toutes les pièces avec commande centralisée • Porte palière équipée d’une serrure 5 points latéraux classement A2P** • Digicode et vidéophone • Cuisine équipée jusqu’au T2 inclus (option sur T3) • WC suspendus • Douches avec receveur extra-plat et portes

Pour plus d’informations, contactez l’étude :
+33 (0)1.44.58.60.51